Property Details
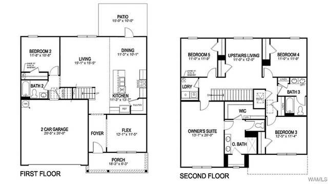
Ask about our interest rates, paid closing cost and easily added options. The Hayden is a two-story plan with 5 bedrooms and 3 bathrooms in 2,511 square feet. The main level features a flex room adjacent to the foyer, ideal for a formal dining room or home office. The gourmet kitchen has an oversized island for extra seating and a large pantry, and it opens to the dining area and a spacious living room. A bedroom with a full bathroom completes the main level. Bedroom One is on the second level and offers a walk-in shower, private bathroom, double vanities and a walk-in closet. There are 3 additional bedrooms, a full bathroom, a walk-in laundry room, and a loft-style living room on the second level. Quality materials and workmanship throughout, with superior attention to detail, plus a one-year builders warranty. Your new home also includes our smart home technology package!
Quick Facts
11629 McCord LaneMoundville, AL 35474
MLS #170441
Listed 4 months ago
$324,400
Features
- Type: SingleFamilyResidence
- Acreage: 0.15
- Garage: Yes
- Garage Spaces: 2.0
- Interior Features: OpenConcept
- Cooling: Electric, OneUnit
- Heating: Electric
- Year Built: 2025
- Appliances: ElectricWaterHeater
- Construction: CementSiding
- Fireplace: None
- HOA Fee: 425.0
- HOA Term: Annually
- Laundry: LaundryRoom
- Levels: Two
- Porch/Patio: Covered, Patio
- Style: Other
- Roof: Composition, Shingle
- Sewer: Connected
- Utilities: SewerConnected
- Waterfront: Yes
- Windows: DoublePaneWindows